Mitsubishi
Mitsubishi Electric MFZ-KT35VG/SUZ-M35VA Truhengerät Klimaanlage
Mitsubishi Electric MFZ-KT35VG/SUZ-M35VA Truhengerät Klimaanlage
• Sofort versandfertig. Lieferzeit: 6-14 Tage
Verfügbarkeit für Abholungen konnte nicht geladen werden
Technische Daten
Technische Daten
Technische Daten der Bestandteile des Produktsets:
Mitsubishi Electric Außengerät 3,5 kW - SUZ-M35VA - R32
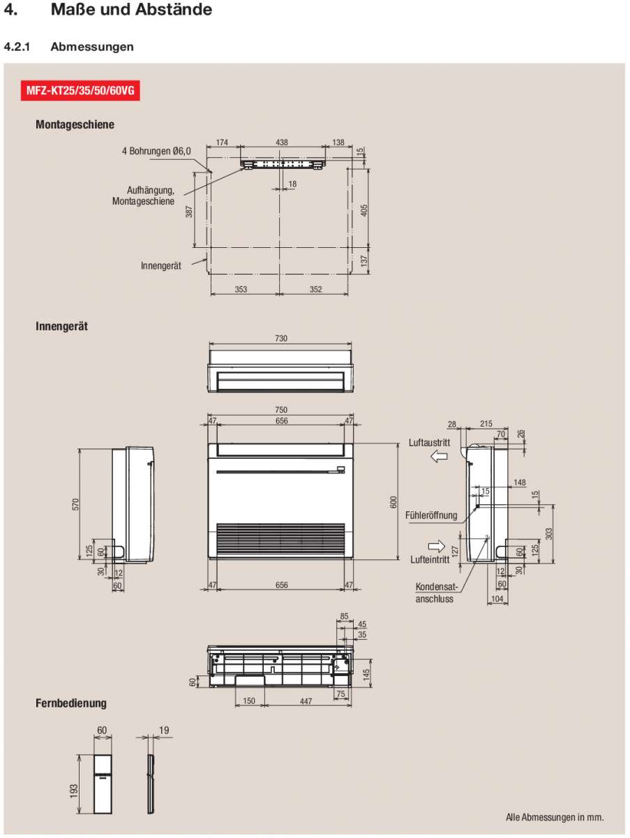
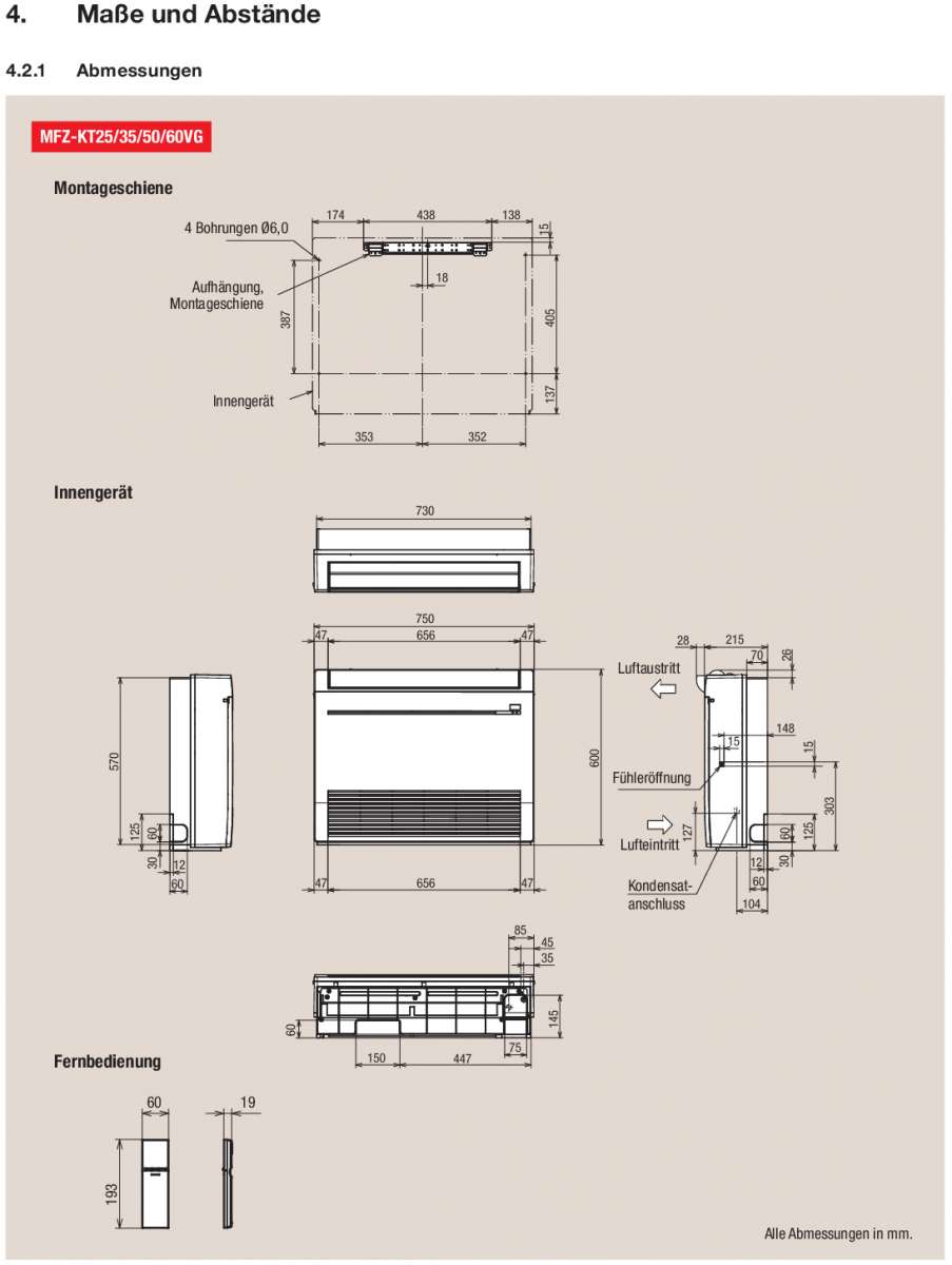
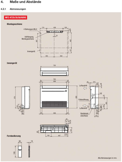
Abmessungen Außengerät in mm (H x B x T): 550 x 800 x 285
Anzahl anschließbarer Innengeräte/Typ: 1
Einsatzbereich Heizen: -10 bis +24 (°C)
Einsatzbereich Kühlen: -10 bis +46 (°C)
Empfohlene Raumgröße: 35
Energiebedarf pro Jahr Heizen in KWh. (bezogen auf 1400 Betriebstunden): 1540
Energiebedarf pro Jahr Kühlen in KWh. (bezogen auf 350 Betriebstunden): 340
Energieeffizienz Heizen:
Energieeffizienz Kühlen:
Gewicht Außengerät in kg: 35,0
GWP-Wert: R32: 675
Heizleistung (min.~max.) in KW: 4,1 (1,1 - 4,9)
Kabel Einspeisung min.: 3 x 1,5 mm²
Kabelverbindung zwischen Innengerät und Außengerät: 4 x 1,5 mm²
Kältemittel Höhendifferenz Außengerät-Innengerät max. in Meter: 12
Kältemittel Typ: R32
Kältemitteleinspritzung: Elektrisches-Expansionsventil im Außengerät
Kältemittelleitung Länge zwischen Innen- Außengerät max. in Meter: 20
Kältemittelmenge (vorgefüllt) in Kg: 0,65
Kältemittelnachfüllmenge zusätzlich je weiteren Meter in Gramm: 20
Kältemittelvorfüllung für Leitungslänge in Meter : 7
Kältetechnischer Anschluss Flüssigkeitsleitung: 1 x 1/4" (6,35 mm)
Kältetechnischer Anschluss Sauggasleitung: 1 x 3/8" (9,52 mm)
Kühlleistung (min.~max.) in KW: 3,5 (0,8 - 3,9)
Kühlungsart: Luftkühlung/Luftheizung
Leistungsaufnahme Heizen (min.~max.) in KW: 1,1
Leistungsaufnahme Kühlen (min.~max.) in KW: 0,97
Schalldruckpegel Aussengerät Kühlen/Heizen dB(A): 48/48
Schallleistungspegel Aussengerät Kühlen/Heizen dB(A): 59
SCOP / Heizen: 4,6
SEER / Kühlen: 7,0
Spannungsversorgung Aussengerät: 220-240 V / 1Ph / 50Hz, N, PE
Wärmeisolierung, dampfdiffusionsdicht: alle Leitungen
Mitsubishi Electric Truhengerät Kompakt 3,5 kW - MFZ-KT35VG R32
Abmessungen Innengerät in mm (H x B x T): 600 x 750 x 215
Absicherung: über Aussengerät
Amazon Alexa und Google Assistant: Optional
Ausführung Inneneinheit: Truhengerät
Empfohlene Raumgröße: 35
Fernbedienung inklusive: Ja
Fernbedienung Typ: Infrarot-FB "(Optional Kabelfernbedienung)"
Gerätetyp: Heizen/Kühlen/Entfeuchten/Luftreinigung
Gewicht Innengerät in kg: 14,5
Heizleistung (KW): 4,3
Innengerät für Anwendung: Mono + Multi Split
Kabelverbindung zwischen Innengerät und Außengerät: 4 x 1,5 mm²
Kältemittel Typ: R32
Kältemitteleinspritzung: Elektrisches-Expansionsventil im Außengerät
Kältetechnischer Anschluss Flüssigkeitsleitung: 1 x 1/4" (6,35 mm)
Kältetechnischer Anschluss Sauggasleitung: 1 x 3/8" (9,52 mm)
Kondensatleitung Durchmesser in mm: 16
Kondensatpumpe intern: Nein
Kühlleistung (KW): 3,5
Kühlungsart: Luftkühlung/Luftheizung
Luftfilter: Langzeitfilter
Luftvolumenstrom je Stufe in m³/h: 234/288/390/468/534
Schalldruckpegel je Stufe in dB(A): 19/24/31/37/41
Schallleistungspegel Innengerät Kühlen/Heizen (dB(A)): 54
Spannungseinspeisung: am Außengerät
Spannungversorgung Innengerät: 220-240 V / 1Ph / 50Hz, N, PE
Wärmeisolierung, dampfdiffusionsdicht: alle Leitungen
WiFi/WLAN Funktion: Optional
Mitsubishi Electric Monosplit-Klimaanlage mit Truhengerät MFZ-KT
Das Truhengerät wird in Bodennähe an der Wand montiert oder einfach aufgestellt. Mit einem klaren, eleganten Design und moderaten Abmessungen passt sich das Truhengerät sehr gut in jeden Raum ein. Insbesondere in Räumen mit Dachschrägen oder bei fehlendem Platz in oberen Wandbereichen eignet sich diese Geräteausführung ideal. Mit gerade einmal 19db (A) ist das Allround-Talent im Betrieb kaum hörbar.
Immer die optimale Luftverteilung
Mit der Multiflow-Vane-Funktion lässt sich der Luftstrom durch zwei Ausblaslamellen auf die jeweiligen Bedürfnisse des Benutzers ausrichten. Im Heizbetrieb gelangt die warme Luft direkt in Bodennähe – für behaglich warme Füße. Drei Lüfterstufen bieten viel Komfort. Mit der zusätzlichen SuperHigh-Lüfter stufe im Automatikbetrieb können Räume sehr schnell erwärmt oder abgekühlt werden.
Effiziente Inverter-Technologie
Mit der Inverter-Technologie ist die Effizienz gleich eingebaut. Im Gegensatz zu herkömmlichen Klimageräten, die abwechselnd entweder mit voller Leistung kühlen bzw. heizen oder ausgeschaltet sind, wird bei den Invertergeräten die Drehzahl des Verdichters stufenlos geregelt. Die Raumtemperatur bleibt konstant – die Geräte verbrauchen weniger Energie und sind deutlich leiser.
Funktion "Auskühlschutz"
Die minimal einstellbare Temperatur im Heizbetrieb beträgt 10 °C. Das sorgt für einen sparsamen Betrieb in nicht genutzten Räumen. Außerdem wird ein zu starkes Auskühlen verhindert
Automatische Lüftersteuerung
Sorgt für die optimale Luftmenge je nach Leistungsbedarf. Wenn kurz nach dem Einschalten viel Leistung benötigt wird, schaltet das Gerät automatisch auf eine hohe Stufe. Beim Erreichen der gewünschten Temperatur wird die Luftmenge automatisch reduziert.
Silber-Ionen-Luftreinigungsfilter (Antibakterielle Wirkung)
Die Silber-Ionen-Technologie erzielt eine extrem hohe Luftreinigung, die Bakterien, Pollen und Allergene wirkungsvoll aus der Raumluft abscheidet. Der äußerst hohe Abscheidegrad fängt Partikel mit einer Größe von 1~10 μm ab.
Luftreinigungsfilter
Filtert groben Staub (>800 μm) aus der Raumluft und beugt einer Verschmutzung des Wärmetauschers vor.
Angenehme Luftverteilung durch vertikalen Swing
Die Luftaustrittsklappe bewegt sich auf und ab und erreicht damit eine angenehme Verteilung der konditionierten Luft in alle Bereiche des Raumes.
Lieferumfang:
1 x Inneneinheit
1 x Außeneinheit
1 x Fernbedienung
1 x Bedienungsanleitung
